Country House Harmonia
Preview only — see all hotel photos
See all 51 photos 1 /
51
9.9
14 yorum
Best options for your travel dates
Oteli haritada göster
Country House Harmonia
Country House Harmonia, Monuments and memorial di Ludovit Stur'den 25 dakikalık, Ceramics museum'dan ise 30 dakikalık bir yürüyüş uzaklığındadır. Bu villanın odaları bahçe manzaralıdır.
Tatil evi Trenčín'a 82 km uzaklıktadır. Cerveny kamen Kalesi villanın bitişiğinde yer almaktadır.
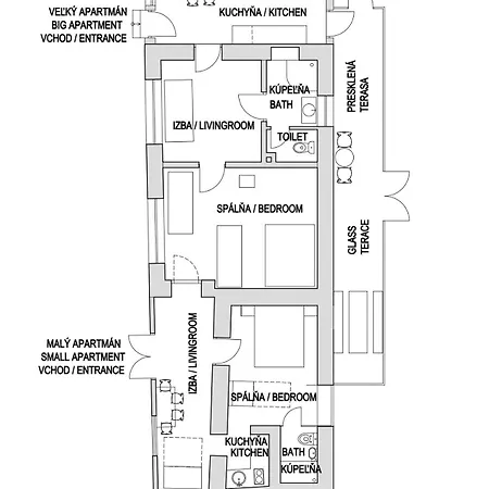
Tam donanımlı mutfağın sahip 2 yatak odalı konaklama imkanı sunulmaktadır. 2 banyo odası bulunmaktadır.
Daha fazla +
Daha az -
Bekleyin lütfen, sizin için müsait odaları arıyoruz.
Otelleri arıyoruz
Kolaylıklar
Genel Olanaklar
- Wi-Fi
- Çocuk dostu
- Evcil hayvanlar
Olanaklar
Genel tanıtım:
- Tesis genelinde sigara içilemez
- Wi-Fi
- Otopark
- Evcil hayvanlara izin verilir
Yemek:
- Su ısıtıcısı
- Mutfak aletleri
- Açık hava yemek alanı
Spor ve Dinlenme:
- Bahçe
- Barbekü imkanları
Hizmetler:
- Evcil hayvanlar hizmetleri
Oda imkanları:
- Oturma alanı
- Teras
- Çay ve kahve imkanları
- Yemek masası
- Ücretsiz banyo malzemeleri
- Beşikler/bebek karyolaları
- Parke zemin
Konaklama Politikası
Giriş: 14:00-23:59 arası
Çıkış: 10:00'a kadar
Harita
Turistik Yerler
Havalimanları
- M R Stefanik (32 km)
Yorumlar
Yorum yaz
%100 Doğrulanmış Yorumlar
9.9 /10